05 54 93 05 40
contact@erelecsociete.com
Accueil
Tertiaire
Courant faible
Courant fort
Brasseur d’air
Mise en conformité / Maintenance
Particuliers
Rénovation
Mise en conformité
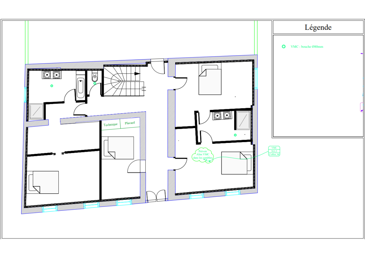
Ventilation
Borne de recharge
Nos équipes
Nos réalisations
Contact
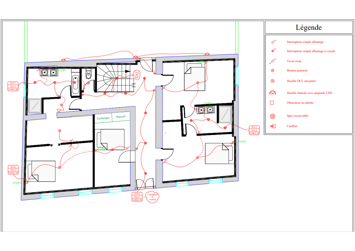
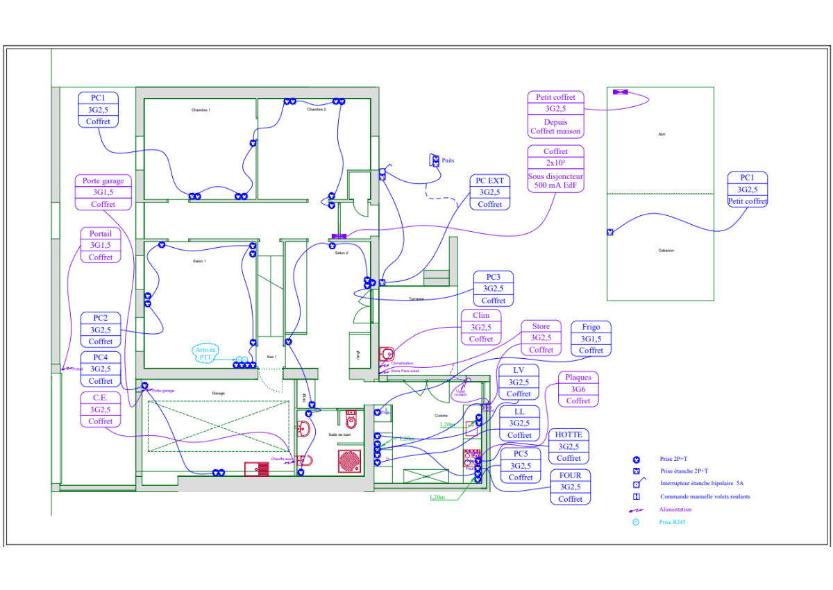
Plans de rénovation
Projets
Nos réalisations
Plans de rénovation